2-к, Полины Осипенко, 7 Показать на карте
Майская Горка округ, 8-й микрорайон
Архангельск
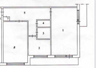
2-комнатная квартира в развитом микрорайоне Майская Горка (Архангельск)Прямая продажа • Один взрослый собственник • Никто не прописан •В собственности более 5 лет • Вся сумма в договореВсе документы готовы — быстрый выход на сделкуПланировка• Раздельные комнаты, удобная планировка.• Функциональная кухня с установленной мебелью.• Один балкон и застеклённая стеклопакетами лоджия.• Перепланировка узаконенаСостояние• Качественный ремонт в спокойных пастельных тонах, легко подойдёт под любой интерьер.• Установлены стеклопакеты, сделаны насыпные полы и натяжные потолки.• Есть счётчики на газ и воду.• Остаётся добротная мебель и часть бытовой техники — удобно для быстрого обустройства.• Тамбур на две квартиры, закрывается на ключ.• Тихие соседи — семейная параИнфраструктураДом находится в развитом микрорайоне Майская Горка. В пешей доступности:• школы 35 и 7 (с бассейном), гимназия 25, детский сад Сиверко,• гипермаркеты Петровский и Макси, торговый центр Вертикаль, магазины и аптеки,• семейная клиника, фитнес-клубы и бассейны,• почтовое отделение, отделение Сбербанка, пункты выдачи маркетплейсов.ТранспортУдобное сообщение с центром и другими районами города: рядом остановки автобусов и маршрутных такси.Квартира полностью готова к продаже.Звоните, чтобы уточнить детали и договориться о просмотре.
51 м2
5 / 9 этаж
Панель
- Показать контакты
- Добавить в избранное
51 м2
5 / 9 этаж
Панель
5 300 000
103 516 /м2
