2-к, Стрельцова, 1 Показать на карте
Катунино
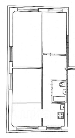
! ! ! арктическая ипотека ! ! !продаётся отличная двухкомнатная квартира в тихом и зеленом районе п. катунино. квартира в отличном состоянии, сделан косметический ремонт ,не требует дополнительных вложений. в доме произведён капитальный ремонт фасада, поменяны трубы и система отопления, отремонтирована кровля.квартира находится на 1 этаже, у дома высокий цоколь. бакона нет!+ общая площадь 43м2+ комнаты смежно-изолированные 16м2 и 8,5+ кухня 6м2, остается встроенная мебель и электроплита+ отдельная гардеробная + окна пвх, выходят на улицу+ пол полностью заменен, постелен качественный линолеум + санузел совмещенный, водонагреватель остается+ потолки частично натяжные+ свежий косметический ремонтрядом всё необходимое для комфортного проживания:- средняя образовательная школа, начальная школа, детский сад, школа искусств, амбулатория, сетевые магазины магнит, бристоль, аптека, банк, остановка общественного транспорта.по мебели дополнительно обсуждается. квартира без долгов и обременений, один взрослый собственник.подходит любая форма оплаты. возможен обмен на вашу недвижимость. поможем оформить ипотеку под самый выгодный процент. юридическое сопровождение на всех этапах сделки.звоните, ответим на все вопросы! организуем показ в удобное для вас время!'' '' Возможен обмен на вашу недвижимость.При звонке, пожалуйста, сообщите номер варианта - JV002029107463
43 м2
1 / 4 этаж
Кирпич - монолит
- Показать контакты
- Добавить в избранное
43 м2
1 / 4 этаж
Кирпич - монолит
2 650 000
61 628 /м2
