Сдаются в аренду свободные площади!
Торговый центр Дали.
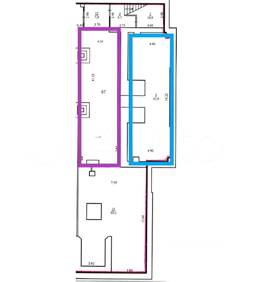
Цокольный этаж.
Свободны два помещения 67 кв. М. И 41,9 кв. М.
( рассмотрим ваши вариант по размещению на меньшей площади под вашу потребность).
Второй этаж.
Помещение свободной планировки от 20 до 500 кв. М.
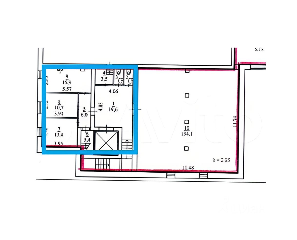
Третий этаж.
Общая площадь помещений для аренды 77,5 кв. М. Два отдельных санузла.
Сдаем в аренду всю площадь, а также по частям.
Возможное использование:
Пвз (пункт выдачи заказов) Озон и Вайлдберриз,
Услуги (изготовление ключей, ремонт обуви, ателье, косметолог, массаж, маникюр, парикмахерская и т. Д.).
Склад. Офис. Фитнес. Развивающие занятия и т. Д.
Индивидуальные условия.
Сдаются в аренду свободные площади!
Торговый центр Дали.
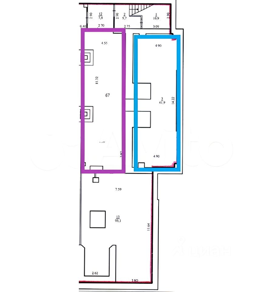
Цокольный этаж.
Свободны два помещения 67 кв. М. И 41,9 кв. М.
( рассмотрим ваши вариант по размещению на меньшей площади под вашу потребность).
Второй этаж.
Помещение свободной планировки от 20 до 500 кв. М.
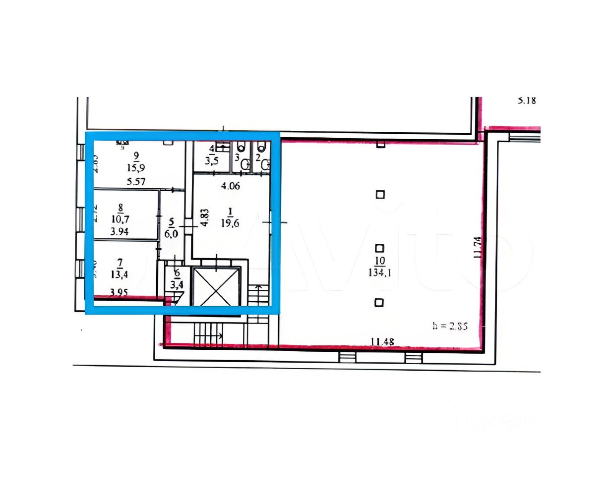
Третий этаж.
Общая площадь помещений для аренды 77,5 кв. М. Два отдельных санузла.
Сдаем в аренду всю площадь, а также по частям.
Возможное использование:
Пвз (пункт выдачи заказов) Озон и Вайлдберриз,
Услуги (изготовление ключей, ремонт обуви, ателье, косметолог, массаж, маникюр, парикмахерская и т. Д.).
Склад. Офис. Фитнес. Развивающие занятия и т. Д.
Индивидуальные условия.
Стоимость аренды зависит от размера площади и обсуждается индивидуально.
Высокая проходимость.
Пандус.
Наличие парковки.
Электроснабжение и водоснабжение по счетчикам.
Условия аренды: Цена договорная.
Без комиссии, без залога, на прямую от собственника.
Индивидуальные условия сотрудничества.
Для получения дополнительной информации и организации просмотра,
пожалуйста, свяжитесь с нами. Если не дозвонились пишите сообщения.
#Озон.