сдам торговые площади, Островского, 9288 330 ₽ в месяц
22 сен
Дата публикации объявления
Обн. 22 мар
Дата обновления объявления
1
Количество просмотров (+ просмотры за сегодня)
700 ₽/м² в месяц
Параметры
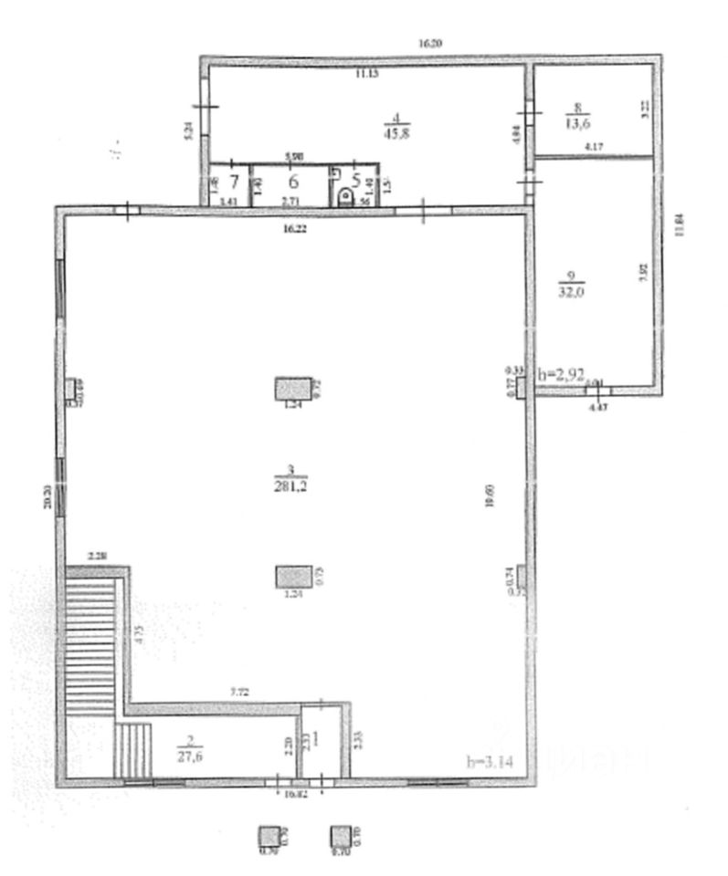
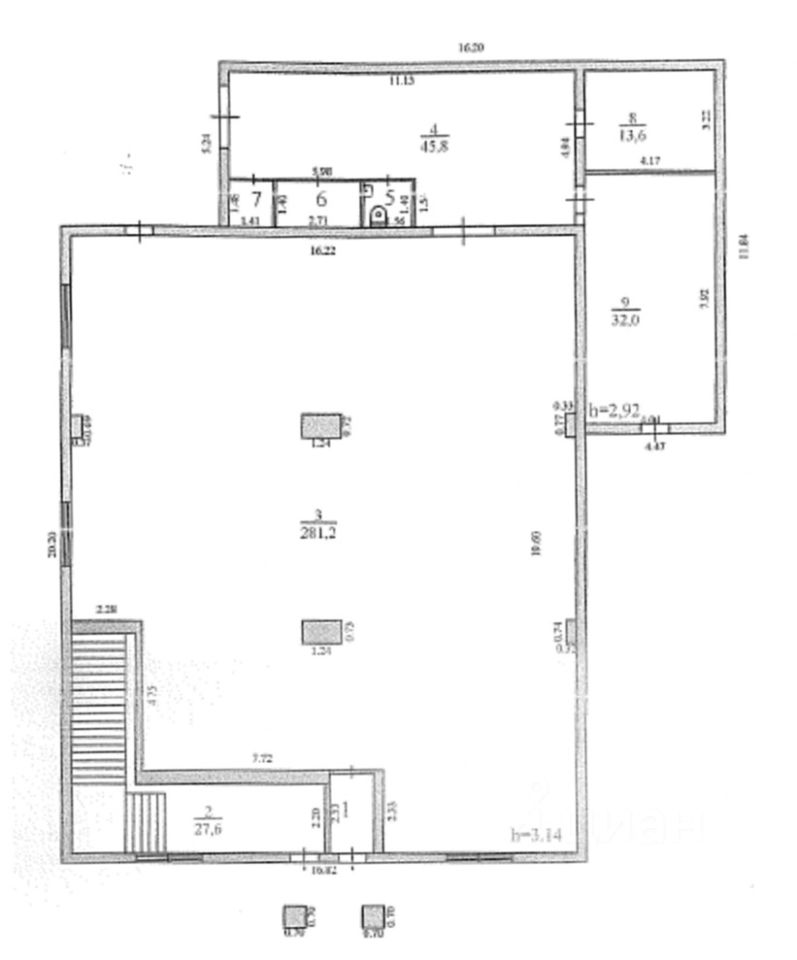
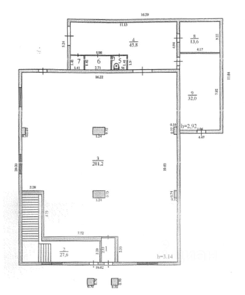
Общая площадь411,9 м2
Этаж1
Адрес : Архангельская область, г. Няндома, ул. Островского, 9. ( центральная часть города).
Сдача в аренду нежилого помещения на первом этаже в 2-х этажном здании магазина, общая площадь помещения - 411,9 кв.м., площадь торгового зала - 294,8 кв.м., площадь вспомогательных помещений - 117,1 кв.м., высота потолка - 3 м., внутреннее пространство помещения разделено на торговый зал, административное помещение, санузлы, котельную, электрощитовую, для обеспечения защиты от потоков холодного воздуха на входе предусмотрена воздушная тепловая завеса, загрузка товара осуществляется с хозяйственного крыльца, водопровод, электроснабжение - от городской сети, вентиляция приточно-вытяжная, отопление - пеллетный котёл и резервный электрический котёл. Парковка на 10 машино-мест.
Адрес : Архангельская область, г. Няндома, ул. Островского, 9. ( центральная часть города).
Сдача в аренду нежилого помещения на первом этаже в 2-х этажном здании магазина, общая площадь помещения - 411,9 кв.м., площадь торгового зала - 294,8 кв.м., площадь вспомогательных помещений - 117,1 кв.м., высота потолка - 3 м., внутреннее пространство помещения разделено на торговый зал, административное помещение, санузлы, котельную, электрощитовую, для обеспечения защиты от потоков холодного воздуха на входе предусмотрена воздушная тепловая завеса, загрузка товара осуществляется с хозяйственного крыльца, водопровод, электроснабжение - от городской сети, вентиляция приточно-вытяжная, отопление - пеллетный котёл и резервный электрический котёл. Парковка на 10 машино-мест. Возможное использование : торговля, общественное питание, пункты выдачи товара, сфера услуг и т.д.