3-к, Маяковского, 21 корп. 1 Показать на карте
Соломбальский округ, Соломбала
Архангельск
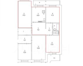
Арт. 113047118 На прямой продаже просторная трехкомнатная квартира, расположенная по адресу: Архангельск, улица Маяковского дом 21, корпус 1.Кирпичный дом индивидуального проекта 2002 года постройки, Дом малоквартирный всего две квартиры на этаже, отдельный тамбур, приветливые соседи.Общая площадь квартиры 85 квадратных метров. Идеальный вариант для семьи с детьми. Удобная и функциональная планировка, большие изолированные комнаты каждая с отдельным входом. Просторная прихожая 20 квадратных метров, где удобно расположился шкаф-купе для хранения вещей и верхней одежды и замечательное место отдыха у камина. Раздельный санузел. Просторная кухня в которой гармонично разместился встроенный кухонный гарнитур и обеденная группа. Застекленная просторная лоджия.Квартира располагает к себе своим уютом и теплом, солнечная сторона, большие окна, больше чем в типовых планировках. Потолки высотой 3 метра придают квартире еще больше пространства и воздуха.Новым владельцам остается мебель и бытовая техника.В доме организовано ТСЖ, небольшие коммунальные платежи. Облагороженная придомовая территория, Чистый отремонтированный подъезд. Рядом с домом парковка вашего авто. Квартира на прямой продаже!В собственности в одной семье с момента постройки дома, вся сумма в договоре.Купить квартиру можно любым, удобным для Вас способом, как за наличный расчет, так и с использованием ипотечных программ, на самых выгодных условиях. Работаем со всеми ведущими банками-партнерами, быстрое рассмотрение и одобрение заявок, Полное юридическое сопровождение на всех этапах сделки. Возможен Торг!Звоните, ответим на все интересующие вопросы, покажем квартиру в любое, удобное для Вас время!
85 м2
2 / 6 этаж
Кирпич
- Показать контакты
- Добавить в избранное
85 м2
2 / 6 этаж
Кирпич
9 990 000
117 529 /м2
